799 Milton Brown Heirs Rd, Boone, NC 28607
Toggle Navigation
Images
Videos
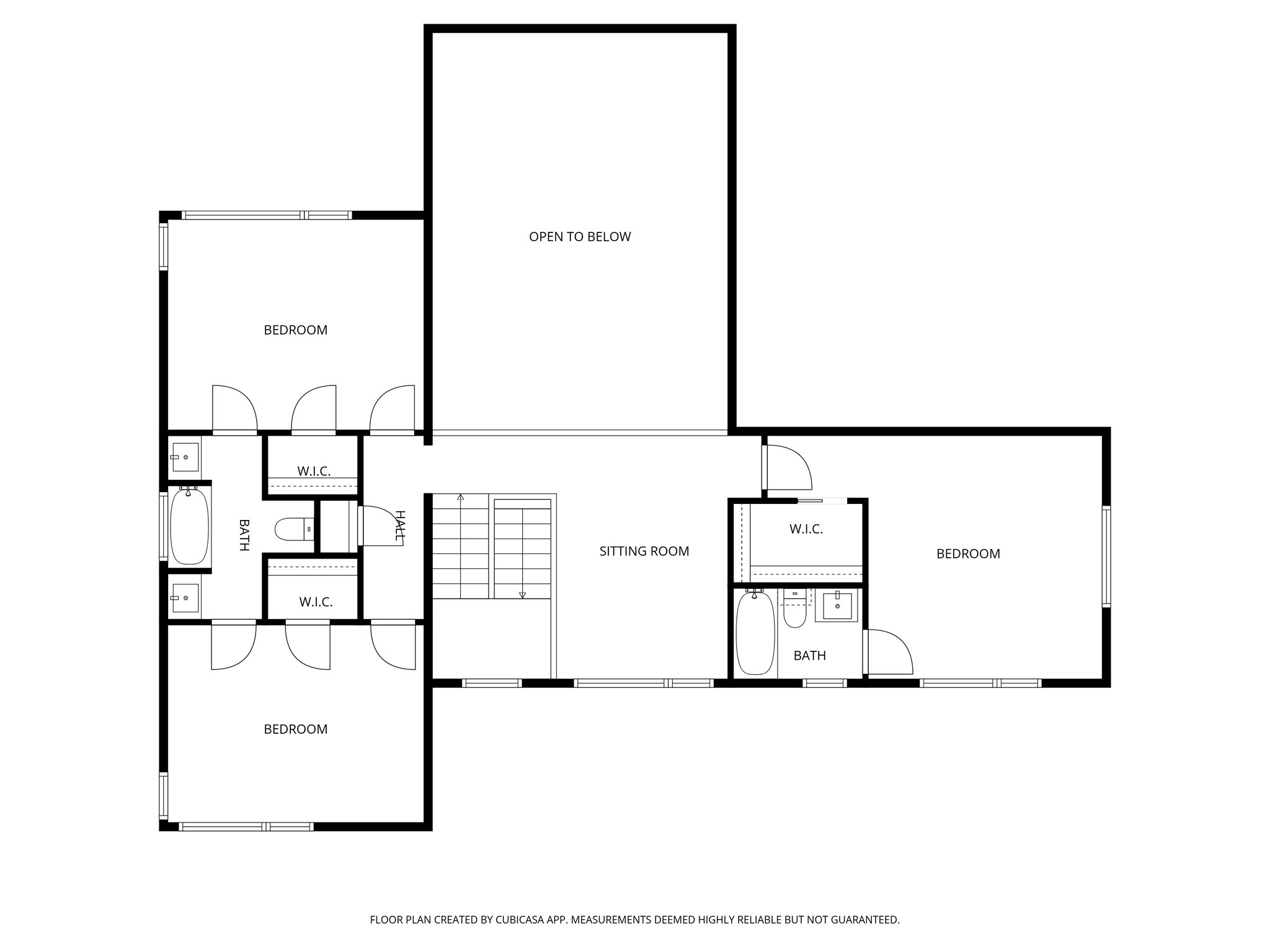
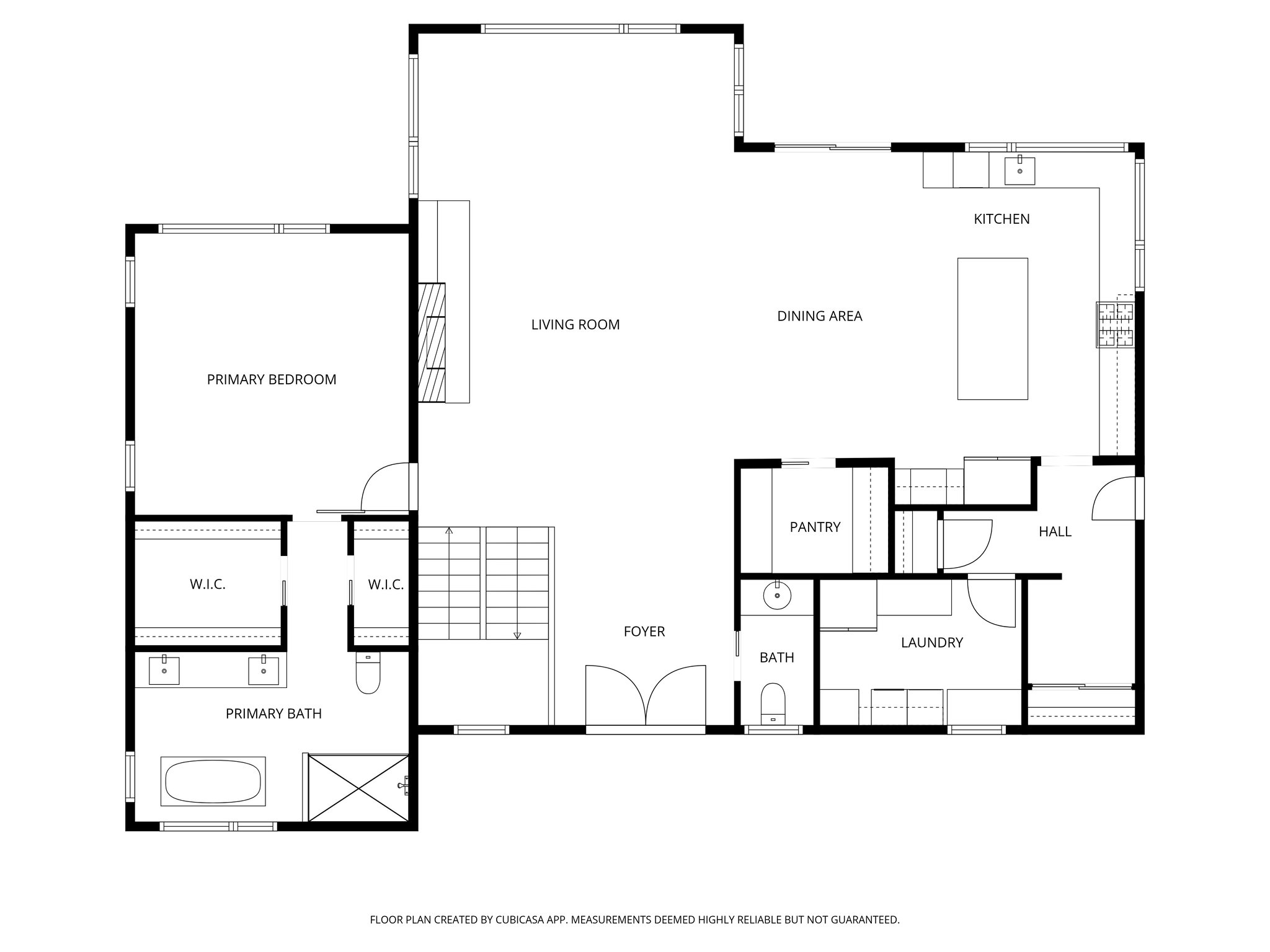
Floor Plans
Map
799 Milton Brown Heirs Rd
Boone, NC 28607
Scroll to Content
Images
Slideshow
Photo Grid
Hide
Previous
Next
Show more
Videos
Floor Plans
Slideshow
Photo Grid
Hide
Previous
Next